Description

*** English translation below***

NIEUW IN DE VERHUUR! Ruim en goed ingedeeld gestoffeerd (meubilair op de foto's is van de vorige bewoner) 3-kamer appartement met balkon in het bruisende Amsterdam-West.

*Reageren kan uitsluitend per email tezamen met profielschets en inkomensindicatie. Kandidaten die geselecteerd zijn ontvangen vervolgens een uitnodiging voor een bezichtiging. 

Omgeving:
Het appartement is gelegen in het levendige stadsdeel "de Baarsjes", welke zich kenmerkt door de vele gezellige boetiekjes, trendy cafés en goede restaurants. Op slechts enkele minuten lopen/fietsen bevinden zich het Erasmus-, Rembrandt -en Vondelpark. Voor de dagelijkse boodschappen en een diversiteit aan winkels kunt u terecht in de nabijgelegen Kinkerstraat dan wel de Jan Evertsenstraat/Mercatorplein. Het appartement is uitstekend bereikbaar met openbaar vervoer (trams, bussen, metro en treinstation Lelylaan) en met de auto bent u via diverse uitvalswegen zo op de Ringweg A-10, A4, A9 en Schiphol. Parkeren middels vergunning. Volgens de laatste gegevens is de geschatte wachttijd voor een parkeervergunning momenteel 5 maanden (bron: Gemeente Amsterdam). Kosten parkeervergunning: €192,81,- per 6 maanden (tarief 2025).

Lay-out:
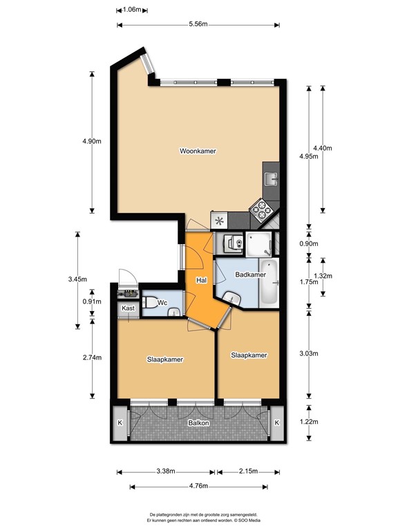
Het appartement bevindt zich op de tweede verdieping en is per trap te bereiken. Entree in de hal. Vanuit de hal toegang tot alle vertrekken, te weten: de woon/eetkamer, keuken, 2 slaapkamers, badkamer, bergruimte met wasmachine en het balkon.

De woon/eetkamer met open keuken bevindt zich aan de voorzijde. De keuken heeft voldoende kastruimte en diverse inbouwapparatuur (o. a. koel/vriescombinatie, 4-pits gasfornuis, vaatwasser en magnetron/oven). Beide slaapkamers (9m2 en 6,5m2) bevinden zich aan de rustige achterzijde en hebben beide toegang tot een ruim balkon op het oosten (ochtendzon). De badkamer is voorzien van een douche, ligbad, wastafel en designradiator. Separaat toilet aanwezig. 

Bijzonderheden:
-Per direct beschikbaar;
-Vraagprijs: €2.275,- p.m. inclusief VvE-bijdrage, exclusief gas, water, elektra, tv/internet en lokale belastingen (afvalstoffenheffing -en waterschapsbelasting);
-Huurperiode: minimaal 12 maanden (model A);
-Borg: 2 maanden kale huur;
-Staat van oplevering: gestoffeerd (inclusief raambekleding, verlichting en vloer). De wasmachine blijft achter maar behoort niet tot de stoffering, eventuele reparatiekosten dan wel vervanging zijn voor rekening huurder;
-55m2;
-Badkamer (douche, ligbad, wastafel en designradiator);
-Separaat toilet;
-2 slaapkamers;
-Houten vloer;
-Wasmachine aanwezig;
-Balkon;
-Roken en huisdieren niet toegestaan;
-Energielabel: A

Voor meer informatie of het maken van een bezichtigingsafspraak kunt u contact opnemen met ons kantoor. Onze medewerkers zijn u graag van dienst.

**********************************************************************************************************************

NEW OFFER! Spacious and well laid out unfurnished (furniture on the pictures is from the previous occupants) 3-room apartment with balcony located in the bustling Amsterdam-West.

*If interested, first respond per email or via this add with your profile (household composition and indication of income). Candidates who are selected will then receive an invitation for a viewing. 

Surroundings:
The apartment is located in the lively district "de Baarsjes", which is characterized by the many cozy boutiques, trendy cafes and good restaurants. Just a few minutes walk/bike ride away are the Erasmus-, Rembrandt -en Vondelpark. For daily shopping and a variety of stores you can visit the nearby Kinkerstraat or the Jan Evertsenstraat/Mercatorplein. The apartment is easily accessible by public transport (streetcars, buses, metro and train station Lelylaan) and by car you can easily reach the ring road A-10, A4, A9 and Schiphol Airport. Parking by permit. According to the latest data, there is currently a waiting list of approx. 5 months for a parking permit (source: City of Amsterdam). Costs parking permit:  €192,81,-  per 6 months (2025 rates).

Lay-out:
The apartment is on the second floor and can be reached by stairs. Entrance into the hallway. From the hallway you have access to all rooms, namely: the living/dining area, kitchen, 2 bedrooms, bathroom, storage with washing machine and balcony.

The living/dining area with open plan kitchen is situated on the front. The kitchen/dining area has lots of cupboard space and a wide range of built-in appliances (fridge/freezer, 4-burner gas stove, dishwasher and microwave/oven). Both bedrooms (9m2 and 6,5 m2) are situated at the quiet backside and have access to a large balcony facing East (morning sun). The bathroom is equipped with a shower, bathtub, sink and design radiator. Separate toilet present.

Features:
-Available immediately;
-Asking price: €2.275,- p.m. including VvE contribution, exclusive gas, water, electricity, tv/internet and local taxes (waste levy and water board tax;
-Rental period: minimum 12 months (model A);
-Security deposit: 2 months base rent;
-State of completion: upholstered (including window covering in all rooms, lightning and floor). The washing machine remains behind but is not part of the upholstery, any repair costs or replacement will be borne by the tenant;
-55m2;
-Bathroom (shower, bathtub, sink and design radiator);
-Separate toilet;
-2 bedrooms;
-Wooden floor;
-Washing machine present;
-Balcony;
-No pets / no smoking;
-Energy label: A

For more information or to make a viewing appointment please contact our office. Our consultants are at your service.

Features